FREE SHIPPING to the United States excluding Alaska and Hawaii for orders over $150.00 ★Share Happiness★

FREE SHIPPING to the United States excluding Alaska and Hawaii for orders over $150.00

今年はどこで桜を見ましょうか?

Spring is nature’s way of saying, 'Let’s party!

店長の独り言。。。。12

By SugitaTakahiko  •   1 minute read

店長の独り言。。。。12

アトランタ倉庫稼働後、間もなく1カ月です。目が回るような忙しさに感謝感謝です。少しずつですが、GOHAN Marketをご利用くださる新規のお客様も増え、また日本人以外のお客様もご注文全体の30%ほどになりました。。。いつまで100%日本語でこんな話を書いていられるのか??いつか英語ブログにしなければならないのか??ハードルが高すぎて意気消沈です。。。

 

さて、日々いろいろなお問い合わせをいただいております。「こんな商品ありませんか?」「日本からこれを持ってきてください」などなど。ざっくりですが、アメリカに販売目的で輸入できない日本食品の概要を少々。。

 

まずは食肉加工品。米国のFSIS認可工場が日本には無いので、ソーセージやハム、ハンバーグなど絶対無理なんです。。あと牛骨粉やチキンエキスを含む商品も基本だめです。牛乳や卵等動物由来物質を含む加工食品の輸入もほぼ無理です。昔はチキンラーメンとか普通に売っていたのに。。。

 

あと日本で認められている添加物は先進国随一の多さなので、アメリカでは認められていないものが多く、ベビーフードや粉ミルクなどは極めて難しいですね。お菓子関係もグレー、オフホワイトな商品が多々です。日本語の内容物記載と英語の記載の微妙なトリックに気付く人もいますね。

 

あとは賞味期限が4~6カ月のものは輸入業者さんが避けがちです。日本の倉庫で出荷まで1カ月、アメリカ倉庫到着にさらに2カ月、残り1~3カ月。これでは商売になりませんね。油で揚げた商品、揚げ煎餅、カップラーメンなどがキツイです。

ということで、例えば豚骨ラーメン。Artificial Tonkotsu FlavorでPork Boneなんて表記はIngredientsに絶対ありません。

 ということで世界一厳しいといわれるアメリカの衛生管理、安全性に関する基準の概要でした。年々厳しさを増しております。カリフォルニア州は商品により(特に海産物など)「これを食べると、使うと、ガンになるかもよ」という記載をしなければいけません。食べ辛いですよね~。。。

 

別件ですが、当店では"Keep refrigerated"(要冷)商品をいくつか販売しております。安全のためメーカーさんが記載しておりますが、保存食、発酵食品など、日本人的感覚では常温で輸送可能と思われる漬物、味噌、などを販売しております。こちらはお客様のご判断でご購入ください。倉庫では一応冷蔵保管しております。

 

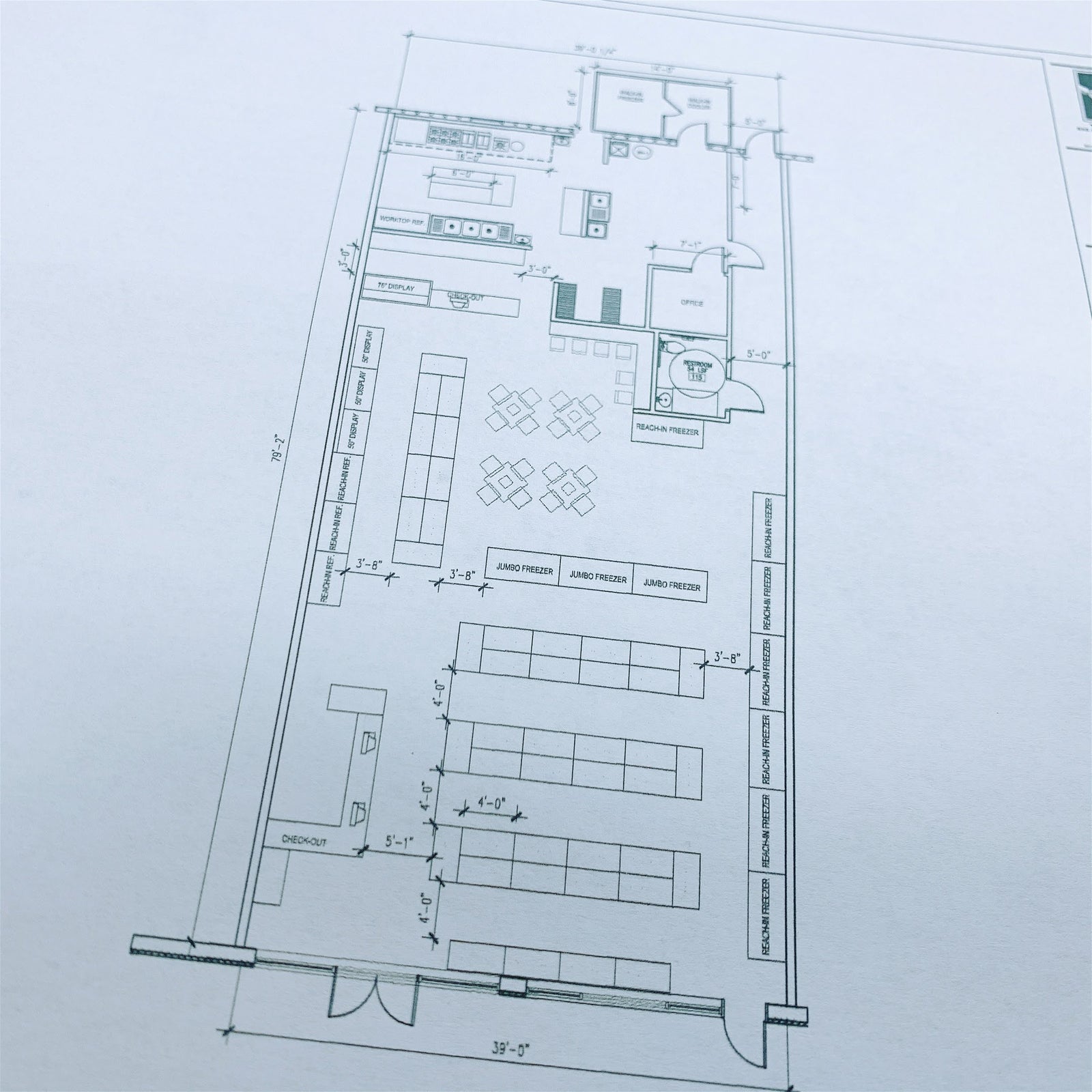
写真は今年の夏ごろ開店予定のGOHAN marketの小さな夢の実店舗、アトランタ店です。オンライン倉庫販売はLOCAL Pick UPにも対応しております。乱文失礼いたしました。

いつもご利用ありがとうございます。

 

 

Previous Next